• NewБлог
  • Покупателю
  • О нас
  • FAQ
  • NewБлог
  • Покупателю
  • О нас
  • FAQ
Загрузка...

Продажа офиса рядом с метро «Грушевка»

Минск, Московский район, улица Щорса, 1А

Тип: Офисы

Вид: Склад+офис

Стоимость

87 360 USD

260 167 BYN

1 300 USD - 1 300 USD за м²

3 872 BYN за м²

Характеристики

Площадь помещений

67.02-67.02 м²

Этаж/этажность

3/8

Расположение

В бизнес-центре

Раздельных помещений

2-2

Материал стен

блочный

Высота потолков

3 м

Состояние помещения

с ремонтом

Вода

есть

Естественное освещение

есть

Отопление

есть

Электроснабжение

есть

Канализация

есть

Скачать презентацию

Местоположение

Описание

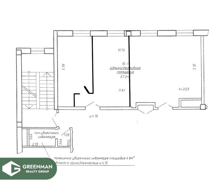
Продается офис 67,2 кв.м.


г. Минск, ул. Щорса 1А. В здании апарт-отеля «Комфорт». В стоимость включен НДС.


До станции метро «Грушевка» всего 750 метров.


Помещение расположено на третьем этаже, разделено на две комнаты, с двумя отдельными входами.


Выполнена отделка в светлых тонах, стены покрашены, на полу ламинат.


На этаже есть также подсобное помещение 4,6 кв.м.


В здании два лифта, на этаже два санузла, круглосуточный доступ, охрана, кондиционер, видеонаблюдение.


Много парковочных мест.

Примечание

Офис рядом с метро «Грушевка», 67,2 кв.м., 3-ий этаж, два лифта, два санузла на этаже, есть подсобное помещение, круглосуточный доступ, охрана, телефон, много парковочных мест

Загрузка...
Загрузка...

Похожие объявления

Адрес

Адрес | Агентство недвижимости Greenman Realty Group

ул. Амураторская 4Б-20

Время работы | Агентство недвижимости Greenman Realty Group

пн - пт с 9:00 до 21:00

Время работы | Агентство недвижимости Greenman Realty Group

сб - вс с 9.00 до 15.00

Почта

Электронная почта | Агентство недвижимости Greenman Realty Group
office@greenrealty.by
Электронная почта | Агентство недвижимости Greenman Realty Group
marketing@greenrealty.by

Телефон

+375 (29) 991-11-91+375 (33) 991-11-91

УНП: 193776897
Лицензия МЮ РБ №02240/488 от 07 августа 2024 г.

Тикток | Агентство недвижимости Greenman Realty GroupИнстаграм | Агентство недвижимости Greenman Realty Group
Рейтинг Realt | Агентство недвижимости Greenman Realty GroupМы на Realt | Агентство недвижимости Greenman Realty Group

Created by

Адрес | Агентство недвижимости Greenman Realty Group

VUCA Digital studio

Загрузка...
Продажа офиса рядом с метро «Грушевка» | Агентство недвижимости Greenman Realty Group
Продажа офиса рядом с метро «Грушевка» | Агентство недвижимости Greenman Realty Group
Продажа офиса рядом с метро «Грушевка» | Агентство недвижимости Greenman Realty Group
Продажа офиса рядом с метро «Грушевка» | Агентство недвижимости Greenman Realty Group
Продажа офиса рядом с метро «Грушевка» | Агентство недвижимости Greenman Realty Group
Продажа офиса рядом с метро «Грушевка» | Агентство недвижимости Greenman Realty Group
Продажа офиса рядом с метро «Грушевка» | Агентство недвижимости Greenman Realty Group
Продажа офиса рядом с метро «Грушевка» | Агентство недвижимости Greenman Realty Group
Продажа офиса рядом с метро «Грушевка» | Агентство недвижимости Greenman Realty Group
Продажа офиса рядом с метро «Грушевка» | Агентство недвижимости Greenman Realty Group
Продажа офиса рядом с метро «Грушевка» | Агентство недвижимости Greenman Realty Group
Продажа офиса рядом с метро «Грушевка» | Агентство недвижимости Greenman Realty Group
Продажа офиса рядом с метро «Грушевка» | Агентство недвижимости Greenman Realty Group
Продажа офиса рядом с метро «Грушевка» | Агентство недвижимости Greenman Realty Group
Продажа офиса рядом с метро «Грушевка» | Агентство недвижимости Greenman Realty Group
Продажа офиса рядом с метро «Грушевка» | Агентство недвижимости Greenman Realty Group
Продажа офиса рядом с метро «Грушевка» | Агентство недвижимости Greenman Realty Group
Продажа офиса рядом с метро «Грушевка» | Агентство недвижимости Greenman Realty Group
Продажа офиса рядом с метро «Грушевка» | Агентство недвижимости Greenman Realty Group
Продажа офиса рядом с метро «Грушевка» | Агентство недвижимости Greenman Realty Group
Продажа офиса рядом с метро «Грушевка» | Агентство недвижимости Greenman Realty Group
Продажа офиса рядом с метро «Грушевка» | Агентство недвижимости Greenman Realty Group
Продажа офиса рядом с метро «Грушевка» | Агентство недвижимости Greenman Realty Group
Продажа офиса рядом с метро «Грушевка» | Агентство недвижимости Greenman Realty Group
Продажа офиса рядом с метро «Грушевка» | Агентство недвижимости Greenman Realty Group
Продажа офиса рядом с метро «Грушевка» | Агентство недвижимости Greenman Realty Group
Продажа офиса рядом с метро «Грушевка» | Агентство недвижимости Greenman Realty Group
Продажа офиса рядом с метро «Грушевка» | Агентство недвижимости Greenman Realty Group
Продажа офиса рядом с метро «Грушевка» | Агентство недвижимости Greenman Realty Group
Продажа офиса рядом с метро «Грушевка» | Агентство недвижимости Greenman Realty Group
Продажа офиса рядом с метро «Грушевка» | Агентство недвижимости Greenman Realty Group
Продажа офиса рядом с метро «Грушевка» | Агентство недвижимости Greenman Realty Group
Продажа офиса рядом с метро «Грушевка» | Агентство недвижимости Greenman Realty Group
Продажа офиса рядом с метро «Грушевка» | Агентство недвижимости Greenman Realty Group
Риэлтер | Агентство недвижимости Greenman Realty Group

Риэлтер

Юлия Шпартова

+375 (XX) XXX-XX-XX

Отправляя заявку вы соглашаетесь с обработкой персональных данных